Elected Officials
Courts
Departments
Initiatives
Open Government
About
Login / Register
Home
/
Property & Tax Records
/
Property Records
/
Property & Tax Search
/
Parcel Profile
/
Sketches
Search for Another Parcel
Parcel Profile
Historical Card
Sketches
Photos
Tax Map
Taxes
Print View
Address: 4112 CHERRY ST
Parcel: 18053010010900
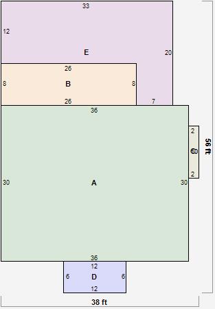
Parcel Sketches
Residential Card 1
A
MAIN
1080 square feet
B
1S FR ONE STORY FRAME
208 square feet
C
FROVR FRAME OVERHANG
20 square feet
D
MA_PT CONC/MAS PATIO
72 square feet
E
WDDCK WOOD DECKS
452 square feet