Elected Officials
Courts
Departments
Initiatives
Open Government
About
Login / Register
Home
/
Property & Tax Records
/
Property Records
/
Property & Tax Search
/
Parcel Profile
/
Sketches
Search for Another Parcel
Parcel Profile
Historical Card
Sketches
Photos
Tax Map
Taxes
Print View
Address: 4703 CHERRY ST
Parcel: 18053016021500
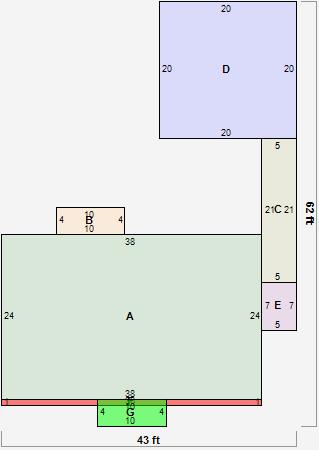
Parcel Sketches
Residential Card 1
A
MAIN
912 square feet
B
1S FR ONE STORY FRAME
40 square feet
C
CANPY CANOPY
105 square feet
D
FR GR FRAME GARAGE
400 square feet
E
EFP ENCL FRAME PORCH
35 square feet
F
FROVR FRAME OVERHANG
38 square feet
G
MA STOOP/TERR MAS STOOP
40 square feet