Elected Officials
Courts
Departments
Initiatives
Open Government
About
Login / Register
Home
/
Property & Tax Records
/
Property Records
/
Property & Tax Search
/
Parcel Profile
/
Sketches
Search for Another Parcel
Parcel Profile
Historical Card
Sketches
Photos
Tax Map
Taxes
Print View
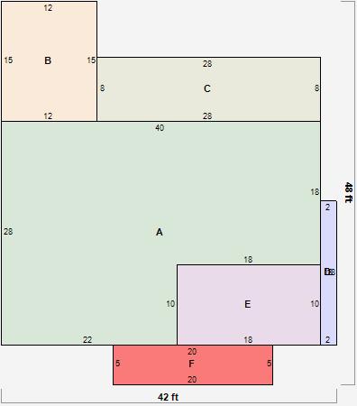
Address: 4727 CHERRY ST
Parcel: 18053016021900
Parcel Sketches
Residential Card 1
A
MAIN
940 square feet
B
EFP ENCL FRAME PORCH
180 square feet
C
1S FR ONE STORY FRAME
224 square feet
D
EFP ENCL FRAME PORCH
36 square feet
E
EFP ENCL FRAME PORCH
180 square feet
F
MA_PT CONC/MAS PATIO CANPY CANOPY
100 square feet