Elected Officials
Courts
Departments
Initiatives
Open Government
About
Login / Register
Home
/
Property & Tax Records
/
Property Records
/
Property & Tax Search
/
Parcel Profile
/
Sketches
Search for Another Parcel
Parcel Profile
Historical Card
Sketches
Photos
Tax Map
Taxes
Print View
Address: 447 GLENWOOD BLVD
Parcel: 18053018020700
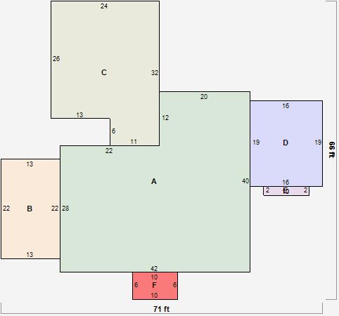
Parcel Sketches
Residential Card 1
A
MAIN
1416 square feet
B
1SMAS MASONRY
286 square feet
C
MG/BG MASONRY/BRICK GARAGE
690 square feet
D
1SMAS MASONRY
304 square feet
E
MABAY MASONRY BAY
20 square feet
F
MA STOOP/TERR MAS STOOP
60 square feet