Elected Officials
Courts
Departments
Initiatives
Open Government
About
Login / Register
Home
/
Property & Tax Records
/
Property Records
/
Property & Tax Search
/
Parcel Profile
/
Sketches
Search for Another Parcel
Parcel Profile
Historical Card
Sketches
Photos
Tax Map
Taxes
Print View
Address: 461 HILLTOP RD
Parcel: 18053020030200
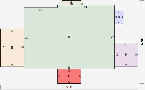
Parcel Sketches
Residential Card 1
A
MAIN
1012 square feet
B
1SMAS MASONRY
160 square feet
C
MABAY MASONRY BAY
20 square feet
D
EFP ENCL FRAME PORCH
24 square feet
E
OMP OPEN MASONRY PORCH
100 square feet
F
OFP OPEN FRAME PORCH
60 square feet