Elected Officials
Courts
Departments
Initiatives
Open Government
About
Login / Register
Home
/
Property & Tax Records
/
Property Records
/
Property & Tax Search
/
Parcel Profile
/
Sketches
Search for Another Parcel
Parcel Profile
Historical Card
Sketches
Photos
Tax Map
Taxes
Print View
Address: 429 W 38TH ST
Parcel: 18053024010000
Parcel Sketches
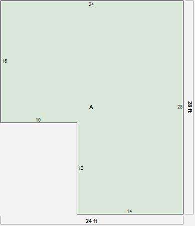
Commercial Card 1
A
MAIN
26400 square feet
Commercial Card 2
A
MAIN
800 square feet
Commercial Card 3
A
MAIN
6062 square feet
B
MAIN
8412 square feet
Commercial Card 4
A
MAIN
3896 square feet
Commercial Card 5
A
MAIN
1076 square feet
B
MAIN
1076 square feet
Commercial Card 6
A
MAIN
894 square feet
Commercial Card 7
A
MAIN
1308 square feet
Commercial Card 8
A
MAIN
5260 square feet
Commercial Card 9
A
MAIN
4410 square feet
Commercial Card 10
A
MAIN
1703 square feet
Commercial Card 11
A
MAIN
3701 square feet
B
MAIN
3818 square feet
C
MAIN
3737 square feet
Commercial Card 12
A
MAIN
3778 square feet
B
MAIN
3877 square feet
C
MAIN
3778 square feet
Commercial Card 13
A
MAIN
552 square feet
Commercial Card 14
A
MAIN
382 square feet