Elected Officials
Courts
Departments
Initiatives
Open Government
About
Login / Register
Home
/
Property & Tax Records
/
Property Records
/
Property & Tax Search
/
Parcel Profile
/
Sketches
Search for Another Parcel
Parcel Profile
Historical Card
Sketches
Photos
Tax Map
Taxes
Print View
Address: 347 MARSH ST
Parcel: 18053027020500
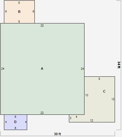
Parcel Sketches
Residential Card 1
A
MAIN
528 square feet
B
EFP ENCL FRAME PORCH
48 square feet
C
UNFIN BSMT BASEMENT UNFINISHED 1S FR ONE STORY FRAME
104 square feet
D
MA STOOP/TERR MAS STOOP
24 square feet