Elected Officials
Courts
Departments
Initiatives
Open Government
About
Login / Register
Home
/
Property & Tax Records
/
Property Records
/
Property & Tax Search
/
Parcel Profile
/
Sketches
Search for Another Parcel
Parcel Profile
Historical Card
Sketches
Photos
Tax Map
Taxes
Print View
Address: 3417 CHAPIN ST
Parcel: 18053027020800
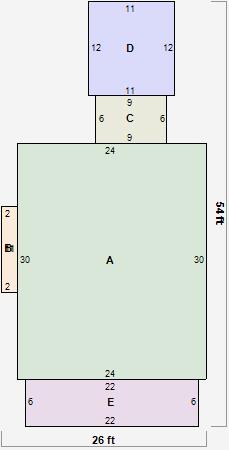
Parcel Sketches
Residential Card 1
A
MAIN
720 square feet
B
FRBAY FRAME BAY
22 square feet
C
EFP ENCL FRAME PORCH
54 square feet
D
WDDCK WOOD DECKS
132 square feet
E
EFP ENCL FRAME PORCH
132 square feet