Elected Officials
Courts
Departments
Initiatives
Open Government
About
Login / Register
Home
/
Property & Tax Records
/
Property Records
/
Property & Tax Search
/
Parcel Profile
/
Sketches
Search for Another Parcel
Parcel Profile
Historical Card
Sketches
Photos
Tax Map
Taxes
Print View
Address: 3317 CHAPIN ST
Parcel: 18053027030700
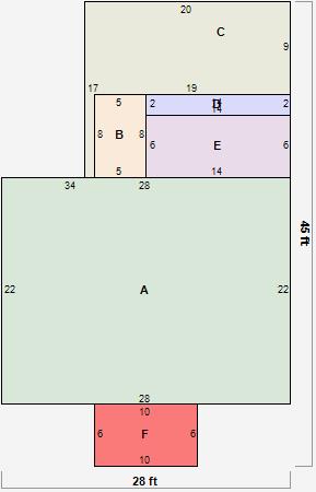
Parcel Sketches
Residential Card 1
A
MAIN
616 square feet
B
EFP ENCL FRAME PORCH 1S FR ONE STORY FRAME
40 square feet
C
WDDCK WOOD DECKS
188 square feet
D
FROVR FRAME OVERHANG
28 square feet
E
1S FR ONE STORY FRAME 1S FR ONE STORY FRAME
84 square feet
F
OFP OPEN FRAME PORCH
60 square feet