Address: 324 NORMAN WAY   Parcel: 18053030020000

Parcel Sketches


Residential Card 1

Residential Card 1
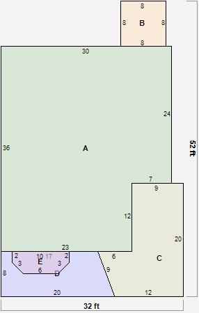
AMAIN996 square feet
B EFP ENCL FRAME PORCH 64 square feet
CUNFIN BSMT BASEMENT UNFINISHED EFP ENCL FRAME PORCH 216 square feet
DUNFIN BSMT BASEMENT UNFINISHED OFP OPEN FRAME PORCH 148 square feet
EUNFIN BSMT BASEMENT UNFINISHED FRBAY FRAME BAY 36 square feet