Elected Officials
Courts
Departments
Initiatives
Open Government
About
Login / Register
Home
/
Property & Tax Records
/
Property Records
/
Property & Tax Search
/
Parcel Profile
/
Sketches
Search for Another Parcel
Parcel Profile
Historical Card
Sketches
Photos
Tax Map
Taxes
Print View
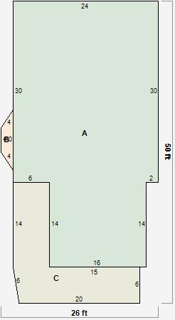
Address: 2981 PEACH ST
Parcel: 18053030032500
Parcel Sketches
Residential Card 1
A
MAIN
944 square feet
B
UNFIN BSMT BASEMENT UNFINISHED FRBAY FRAME BAY
14 square feet
C
OFP OPEN FRAME PORCH
207 square feet