Elected Officials
Courts
Departments
Initiatives
Open Government
About
Login / Register
Home
/
Property & Tax Records
/
Property Records
/
Property & Tax Search
/
Parcel Profile
/
Sketches
Search for Another Parcel
Parcel Profile
Historical Card
Sketches
Photos
Tax Map
Taxes
Print View
Address: 61 KELLOGG ST
Parcel: 18053031013600
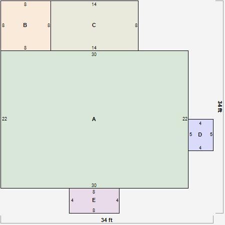
Parcel Sketches
Residential Card 1
A
MAIN
660 square feet
B
OFP OPEN FRAME PORCH
64 square feet
C
EFP ENCL FRAME PORCH
112 square feet
D
WDDCK WOOD DECKS
20 square feet
E
MA STOOP/TERR MAS STOOP
32 square feet