Elected Officials
Courts
Departments
Initiatives
Open Government
About
Login / Register
Home
/
Property & Tax Records
/
Property Records
/
Property & Tax Search
/
Parcel Profile
/
Sketches
Search for Another Parcel
Parcel Profile
Historical Card
Sketches
Photos
Tax Map
Taxes
Print View
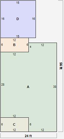
Address: 209 GRIDLEY AVE
Parcel: 18053034010100
Parcel Sketches
Residential Card 1
A
MAIN
792 square feet
B
1S FR ONE STORY FRAME 1S FR ONE STORY FRAME
72 square feet
C
OFP OPEN FRAME PORCH
72 square feet
D
WDDCK WOOD DECKS
240 square feet