Elected Officials
Courts
Departments
Initiatives
Open Government
About
Login / Register
Home
/
Property & Tax Records
/
Property Records
/
Property & Tax Search
/
Parcel Profile
/
Sketches
Search for Another Parcel
Parcel Profile
Historical Card
Sketches
Photos
Tax Map
Taxes
Print View
Address: 3335 GLENSIDE AVE
Parcel: 18053034040900
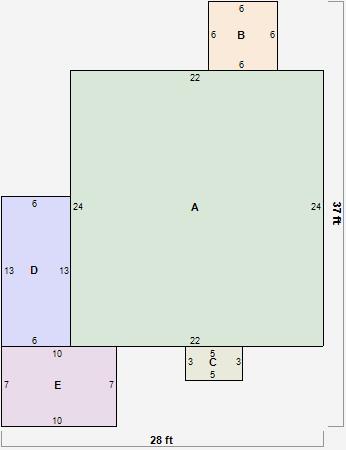
Parcel Sketches
Residential Card 1
A
MAIN
528 square feet
B
EFP ENCL FRAME PORCH
36 square feet
C
OFP OPEN FRAME PORCH
15 square feet
D
FR GR FRAME GARAGE 1S FR ONE STORY FRAME
78 square feet
E
FR GR FRAME GARAGE
70 square feet