Elected Officials
Courts
Departments
Initiatives
Open Government
About
Login / Register
Home
/
Property & Tax Records
/
Property Records
/
Property & Tax Search
/
Parcel Profile
/
Sketches
Search for Another Parcel
Parcel Profile
Historical Card
Sketches
Photos
Tax Map
Taxes
Print View
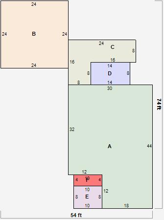
Address: 3820 COCHRAN ST
Parcel: 18053038030800
Parcel Sketches
Residential Card 1
A
MAIN
1176 square feet
B
FR GR FRAME GARAGE
576 square feet
C
1SMAS MASONRY
256 square feet
D
1SMAS MASONRY
112 square feet
E
MA_PT CONC/MAS PATIO
80 square feet
F
EMP ENCL MASONRY PORCH
40 square feet