Elected Officials
Courts
Departments
Initiatives
Open Government
About
Login / Register
Home
/
Property & Tax Records
/
Property Records
/
Property & Tax Search
/
Parcel Profile
/
Sketches
Search for Another Parcel
Parcel Profile
Historical Card
Sketches
Photos
Tax Map
Taxes
Print View
Address: 4013 MYRTLE ST
Parcel: 18053039010700
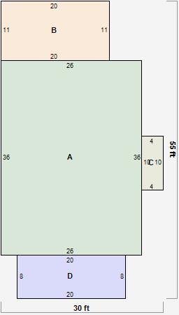
Parcel Sketches
Residential Card 1
A
MAIN
936 square feet
B
MA_PT CONC/MAS PATIO
220 square feet
C
OFP OPEN FRAME PORCH
40 square feet
D
UNFIN BSMT BASEMENT UNFINISHED 1SMAS MASONRY
160 square feet