Elected Officials
Courts
Departments
Initiatives
Open Government
About
Login / Register
Home
/
Property & Tax Records
/
Property Records
/
Property & Tax Search
/
Parcel Profile
/
Sketches
Search for Another Parcel
Parcel Profile
Historical Card
Sketches
Photos
Tax Map
Taxes
Print View
Address: 4017 COCHRAN ST
Parcel: 18053039030900
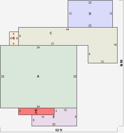
Parcel Sketches
Residential Card 1
A
MAIN
952 square feet
B
MA STOOP/TERR MAS STOOP
24 square feet
C
UNFIN BSMT BASEMENT UNFINISHED 1S FR ONE STORY FRAME 1/2FR FRAME HALF-STORY
456 square feet
D
WDDCK WOOD DECKS
240 square feet
E
MA_PT CONC/MAS PATIO
130 square feet
F
EMP ENCL MASONRY PORCH
48 square feet