Elected Officials
Courts
Departments
Initiatives
Open Government
About
Login / Register
Home
/
Property & Tax Records
/
Property Records
/
Property & Tax Search
/
Parcel Profile
/
Sketches
Search for Another Parcel
Parcel Profile
Historical Card
Sketches
Photos
Tax Map
Taxes
Print View
Address: 3831 ELIOT RD
Parcel: 18053041022000
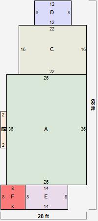
Parcel Sketches
Residential Card 1
A
MAIN
936 square feet
B
FROVR FRAME OVERHANG
24 square feet
C
1S FR ONE STORY FRAME
352 square feet
D
OFP OPEN FRAME PORCH
96 square feet
E
1S FR ONE STORY FRAME
112 square feet
F
OFP OPEN FRAME PORCH
64 square feet