Elected Officials
Courts
Departments
Initiatives
Open Government
About
Login / Register
Home
/
Property & Tax Records
/
Property Records
/
Property & Tax Search
/
Parcel Profile
/
Sketches
Search for Another Parcel
Parcel Profile
Historical Card
Sketches
Photos
Tax Map
Taxes
Print View
Address: 135 W 41 ST
Parcel: 18053043010600
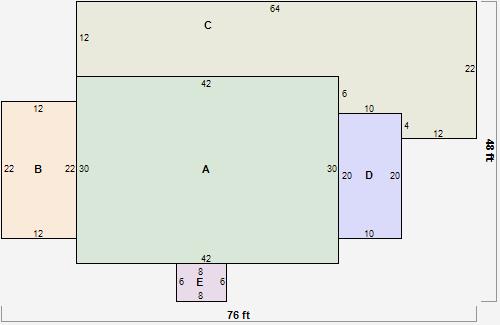
Parcel Sketches
Residential Card 1
A
MAIN
1260 square feet
B
MA_PT CONC/MAS PATIO
264 square feet
C
MA_PT CONC/MAS PATIO
948 square feet
D
1SMAS MASONRY
200 square feet
E
MA STOOP/TERR MAS STOOP
48 square feet