Elected Officials
Courts
Departments
Initiatives
Open Government
About
Login / Register
Home
/
Property & Tax Records
/
Property Records
/
Property & Tax Search
/
Parcel Profile
/
Sketches
Search for Another Parcel
Parcel Profile
Historical Card
Sketches
Photos
Tax Map
Taxes
Print View
Address: 4127 STATE ST
Parcel: 18053047010300
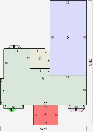
Parcel Sketches
Residential Card 1
A
MAIN
1280 square feet
B
MABAY MASONRY BAY
14 square feet
C
1S FR ONE STORY FRAME
140 square feet
D
MA_PT CONC/MAS PATIO
990 square feet
E
UNFIN BSMT BASEMENT UNFINISHED MABAY MASONRY BAY FRBAY FRAME BAY
16 square feet
F
OFP OPEN FRAME PORCH
180 square feet
G
UNFIN BSMT BASEMENT UNFINISHED MABAY MASONRY BAY FRBAY FRAME BAY
8 square feet