Elected Officials
Courts
Departments
Initiatives
Open Government
About
Login / Register
Home
/
Property & Tax Records
/
Property Records
/
Property & Tax Search
/
Parcel Profile
/
Sketches
Search for Another Parcel
Parcel Profile
Historical Card
Sketches
Photos
Tax Map
Taxes
Print View
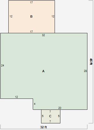
Address: 3920 BEECH AVE
Parcel: 18053048030800
Parcel Sketches
Residential Card 1
A
MAIN
848 square feet
B
1S FR ONE STORY FRAME
204 square feet
C
MA STOOP/TERR MAS STOOP
35 square feet