Elected Officials
Courts
Departments
Initiatives
Open Government
About
Login / Register
Home
/
Property & Tax Records
/
Property Records
/
Property & Tax Search
/
Parcel Profile
/
Sketches
Search for Another Parcel
Parcel Profile
Historical Card
Sketches
Photos
Tax Map
Taxes
Print View
Address: 30 E 38 ST BLVD
Parcel: 18053050010000
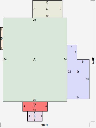
Parcel Sketches
Residential Card 1
A
MAIN
884 square feet
B
MABAY MASONRY BAY
9 square feet
C
UNFIN BSMT BASEMENT UNFINISHED 1SMAS MASONRY
84 square feet
D
UNFIN BSMT BASEMENT UNFINISHED 1SMAS MASONRY
168 square feet
E
MA_PT CONC/MAS PATIO
24 square feet
F
EMP ENCL MASONRY PORCH
40 square feet