Elected Officials
Courts
Departments
Initiatives
Open Government
About
Login / Register
Home
/
Property & Tax Records
/
Property Records
/
Property & Tax Search
/
Parcel Profile
/
Sketches
Search for Another Parcel
Parcel Profile
Historical Card
Sketches
Photos
Tax Map
Taxes
Print View
Address: 30 NORMAN WAY
Parcel: 18053051031300
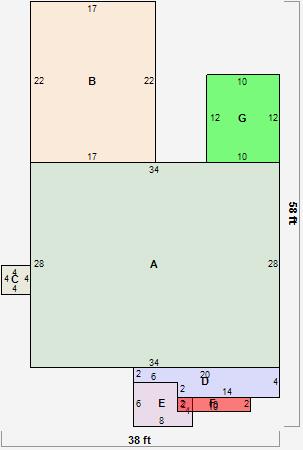
Parcel Sketches
Residential Card 1
A
MAIN
952 square feet
B
MA_PT CONC/MAS PATIO
374 square feet
C
EFP ENCL FRAME PORCH
16 square feet
D
UNFIN BSMT BASEMENT UNFINISHED 1S FR ONE STORY FRAME
68 square feet
E
MA STOOP/TERR MAS STOOP
44 square feet
F
FRBAY FRAME BAY
20 square feet
G
WDDCK WOOD DECKS
120 square feet