Elected Officials
Courts
Departments
Initiatives
Open Government
About
Login / Register
Home
/
Property & Tax Records
/
Property Records
/
Property & Tax Search
/
Parcel Profile
/
Sketches
Search for Another Parcel
Parcel Profile
Historical Card
Sketches
Photos
Tax Map
Taxes
Print View
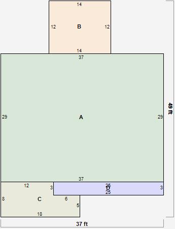
Address: 3615 BEECH AVE
Parcel: 18053051040600
Parcel Sketches
Residential Card 1
A
MAIN
1073 square feet
B
EFP ENCL FRAME PORCH
168 square feet
C
ST_PT STONE OR TILE PATIO
126 square feet
D
UNFIN BSMT BASEMENT UNFINISHED 1SMAS MASONRY AT FN ATTIC-FINISHED
75 square feet