Elected Officials
Courts
Departments
Initiatives
Open Government
About
Login / Register
Home
/
Property & Tax Records
/
Property Records
/
Property & Tax Search
/
Parcel Profile
/
Sketches
Search for Another Parcel
Parcel Profile
Historical Card
Sketches
Photos
Tax Map
Taxes
Print View
Address: 3336 HOLLAND ST
Parcel: 18053053010000
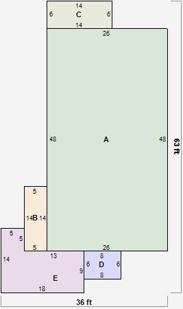
Parcel Sketches
Residential Card 1
A
MAIN
1248 square feet
B
UNFIN BSMT BASEMENT UNFINISHED 1SMAS MASONRY
70 square feet
C
1SMAS MASONRY
84 square feet
D
EMP ENCL MASONRY PORCH
48 square feet
E
WDDCK WOOD DECKS
187 square feet