Elected Officials
Courts
Departments
Initiatives
Open Government
About
Login / Register
Home
/
Property & Tax Records
/
Property Records
/
Property & Tax Search
/
Parcel Profile
/
Sketches
Search for Another Parcel
Parcel Profile
Historical Card
Sketches
Photos
Tax Map
Taxes
Print View
Address: 143 E 33 ST
Parcel: 18053053011000
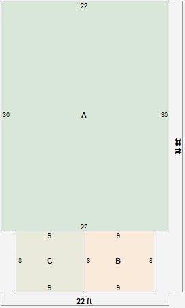
Parcel Sketches
Residential Card 1
A
MAIN
660 square feet
B
1SMAS MASONRY
72 square feet
C
EMP ENCL MASONRY PORCH
72 square feet