Elected Officials
Courts
Departments
Initiatives
Open Government
About
Login / Register
Home
/
Property & Tax Records
/
Property Records
/
Property & Tax Search
/
Parcel Profile
/
Sketches
Search for Another Parcel
Parcel Profile
Historical Card
Sketches
Photos
Tax Map
Taxes
Print View
Address: 114 E 38 ST
Parcel: 18053055012400
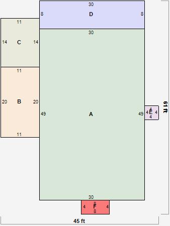
Parcel Sketches
Residential Card 1
A
MAIN
1470 square feet
B
MG/BG MASONRY/BRICK GARAGE
220 square feet
C
UNFIN BSMT BASEMENT UNFINISHED 1SMAS MASONRY
154 square feet
D
MA_PT CONC/MAS PATIO
240 square feet
E
MA STOOP/TERR MAS STOOP
16 square feet
F
1SMAS MASONRY
32 square feet