Elected Officials
Courts
Departments
Initiatives
Open Government
About
Login / Register
Home
/
Property & Tax Records
/
Property Records
/
Property & Tax Search
/
Parcel Profile
/
Sketches
Search for Another Parcel
Parcel Profile
Historical Card
Sketches
Photos
Tax Map
Taxes
Print View
Address: 120 E 37 ST
Parcel: 18053055022400
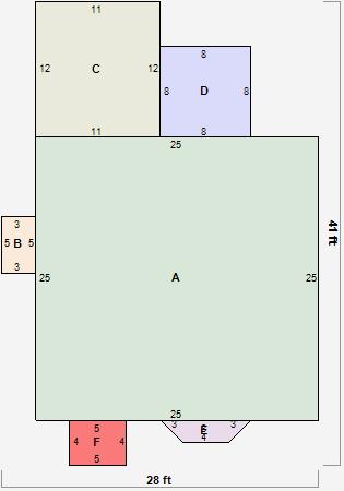
Parcel Sketches
Residential Card 1
A
MAIN
625 square feet
B
MA STOOP/TERR MAS STOOP
15 square feet
C
MA_PT CONC/MAS PATIO
132 square feet
D
EFP ENCL FRAME PORCH
64 square feet
E
FRBAY FRAME BAY
12 square feet
F
MA_PT CONC/MAS PATIO
20 square feet