Elected Officials
Courts
Departments
Initiatives
Open Government
About
Login / Register
Home
/
Property & Tax Records
/
Property Records
/
Property & Tax Search
/
Parcel Profile
/
Sketches
Search for Another Parcel
Parcel Profile
Historical Card
Sketches
Photos
Tax Map
Taxes
Print View
Address: 4022 OLD FRENCH RD
Parcel: 18053057040000
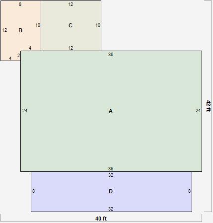
Parcel Sketches
Residential Card 1
A
MAIN
864 square feet
B
OMP OPEN MASONRY PORCH
88 square feet
C
UNFIN BSMT BASEMENT UNFINISHED 1SMAS MASONRY 1SMAS MASONRY
120 square feet
D
OMP OPEN MASONRY PORCH
256 square feet