Elected Officials
Courts
Departments
Initiatives
Open Government
About
Login / Register
Home
/
Property & Tax Records
/
Property Records
/
Property & Tax Search
/
Parcel Profile
/
Sketches
Search for Another Parcel
Parcel Profile
Historical Card
Sketches
Photos
Tax Map
Taxes
Print View
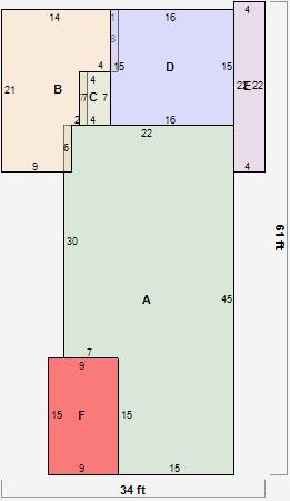
Address: 519 E 33 ST
Parcel: 18053074020600
Parcel Sketches
Residential Card 1
A
MAIN
885 square feet
B
OFP OPEN FRAME PORCH
251 square feet
C
EFP ENCL FRAME PORCH
28 square feet
D
1S FR ONE STORY FRAME
240 square feet
E
OFP OPEN FRAME PORCH
88 square feet
F
1S FR ONE STORY FRAME
135 square feet