Elected Officials
Courts
Departments
Initiatives
Open Government
About
Login / Register
Home
/
Property & Tax Records
/
Property Records
/
Property & Tax Search
/
Parcel Profile
/
Sketches
Search for Another Parcel
Parcel Profile
Historical Card
Sketches
Photos
Tax Map
Taxes
Print View
Address: 2022 24 SASSAFRAS
Parcel: 19060006020000
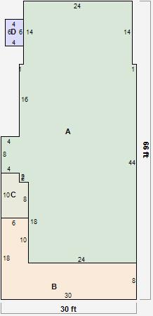
Parcel Sketches
Residential Card 1
A
MAIN
1476 square feet
B
OMP OPEN MASONRY PORCH
300 square feet
C
EMP ENCL MASONRY PORCH
56 square feet
D
EFP ENCL FRAME PORCH
24 square feet