Address: 232 W 21 ST   Parcel: 19060006022600

Parcel Sketches


Residential Card 1

Residential Card 1
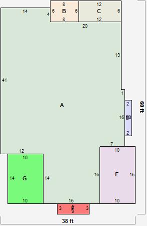
AMAIN1542 square feet
B EFP ENCL FRAME PORCH 48 square feet
C OFP OPEN FRAME PORCH 72 square feet
DUNFIN BSMT BASEMENT UNFINISHED FRBAY FRAME BAY 20 square feet
E OFP OPEN FRAME PORCH 160 square feet
FUNFIN BSMT BASEMENT UNFINISHED FRBAY FRAME BAY 27 square feet
G OFP OPEN FRAME PORCH AT UN ATTIC-UNFINISHED 140 square feet