Elected Officials
Courts
Departments
Initiatives
Open Government
About
Login / Register
Home
/
Property & Tax Records
/
Property Records
/
Property & Tax Search
/
Parcel Profile
/
Sketches
Search for Another Parcel
Parcel Profile
Historical Card
Sketches
Photos
Tax Map
Taxes
Print View
Address: 1817 CHESTNUT ST
Parcel: 19060009021900
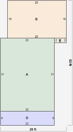
Parcel Sketches
Residential Card 1
A
MAIN
713 square feet
B
UNFIN BSMT BASEMENT UNFINISHED 1SMAS MASONRY
400 square feet
C
OFP OPEN FRAME PORCH
10 square feet
D
OMP OPEN MASONRY PORCH
138 square feet