Address: 321 W 21 ST   Parcel: 19060010010400

Parcel Sketches


Residential Card 1

Residential Card 1
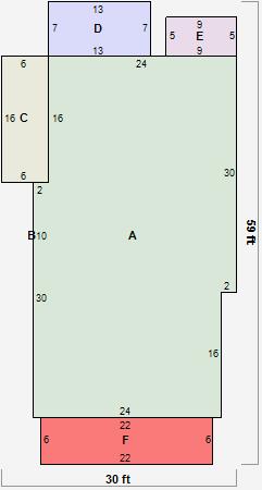
AMAIN1132 square feet
BUNFIN BSMT BASEMENT UNFINISHED FRBAY FRAME BAY FRBAY FRAME BAY 30 square feet
C 1S FR ONE STORY FRAME 1S FR ONE STORY FRAME 96 square feet
D EFP ENCL FRAME PORCH 1S FR ONE STORY FRAME 91 square feet
E OFP OPEN FRAME PORCH 45 square feet
F OFP OPEN FRAME PORCH 132 square feet