Elected Officials
Courts
Departments
Initiatives
Open Government
About
Login / Register
Home
/
Property & Tax Records
/
Property Records
/
Property & Tax Search
/
Parcel Profile
/
Sketches
Search for Another Parcel
Parcel Profile
Historical Card
Sketches
Photos
Tax Map
Taxes
Print View
Address: 362 W 24 ST
Parcel: 19060011012100
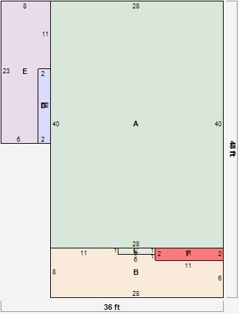
Parcel Sketches
Residential Card 1
A
MAIN
1120 square feet
B
OFP OPEN FRAME PORCH
196 square feet
C
OFP OPEN FRAME PORCH FROVR FRAME OVERHANG
6 square feet
D
FRBAY FRAME BAY
24 square feet
E
OFP OPEN FRAME PORCH
160 square feet
F
1S FR ONE STORY FRAME
22 square feet