Elected Officials
Courts
Departments
Initiatives
Open Government
About
Login / Register
Home
/
Property & Tax Records
/
Property Records
/
Property & Tax Search
/
Parcel Profile
/
Sketches
Search for Another Parcel
Parcel Profile
Historical Card
Sketches
Photos
Tax Map
Taxes
Print View
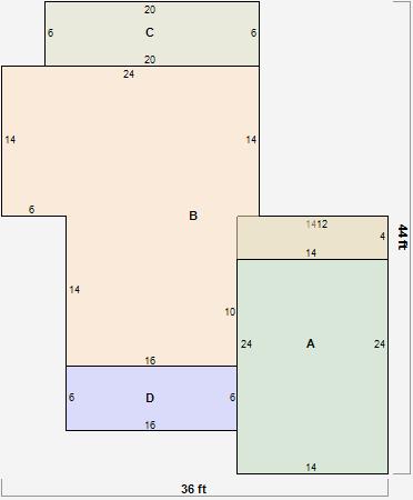
Address: 2511 CHESTNUT ST
Parcel: 19060012012000
Parcel Sketches
Residential Card 1
A
MAIN
336 square feet
B
1S FR ONE STORY FRAME
616 square feet
C
EFP ENCL FRAME PORCH
120 square feet
D
EFP ENCL FRAME PORCH
96 square feet