Elected Officials
Courts
Departments
Initiatives
Open Government
About
Login / Register
Home
/
Property & Tax Records
/
Property Records
/
Property & Tax Search
/
Parcel Profile
/
Sketches
Search for Another Parcel
Parcel Profile
Historical Card
Sketches
Photos
Tax Map
Taxes
Print View
Address: 650 52 W 23 ST
Parcel: 19060018012500
Parcel Sketches
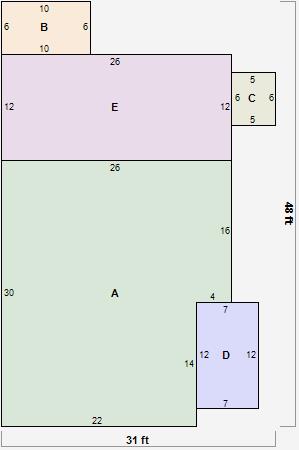
Residential Card 1
A
MAIN
724 square feet
B
OFP OPEN FRAME PORCH
60 square feet
C
EFP ENCL FRAME PORCH
30 square feet
D
OFP OPEN FRAME PORCH
84 square feet
E
1S FR ONE STORY FRAME
312 square feet
Residential Card 2
A
MAIN
600 square feet
B
EFP ENCL FRAME PORCH
72 square feet
C
UNFIN BSMT BASEMENT UNFINISHED 1S FR ONE STORY FRAME
36 square feet
D
OFP OPEN FRAME PORCH
72 square feet