Elected Officials
Courts
Departments
Initiatives
Open Government
About
Login / Register
Home
/
Property & Tax Records
/
Property Records
/
Property & Tax Search
/
Parcel Profile
/
Sketches
Search for Another Parcel
Parcel Profile
Historical Card
Sketches
Photos
Tax Map
Taxes
Print View
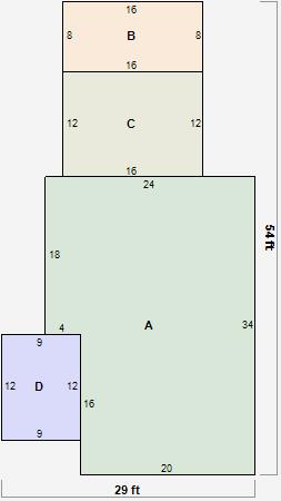
Address: 1816 POPLAR ST
Parcel: 19060020020200
Parcel Sketches
Residential Card 1
A
MAIN
752 square feet
B
1S FR ONE STORY FRAME
128 square feet
C
1S FR ONE STORY FRAME
192 square feet
D
EFP ENCL FRAME PORCH
108 square feet