Elected Officials
Courts
Departments
Initiatives
Open Government
About
Login / Register
Home
/
Property & Tax Records
/
Property Records
/
Property & Tax Search
/
Parcel Profile
/
Sketches
Search for Another Parcel
Parcel Profile
Historical Card
Sketches
Photos
Tax Map
Taxes
Print View
Address: 2018 POPLAR ST
Parcel: 19060021020100
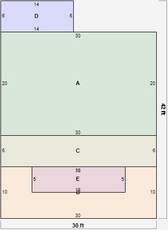
Parcel Sketches
Residential Card 1
A
MAIN
600 square feet
B
OMP OPEN MASONRY PORCH
300 square feet
C
UNFIN BSMT BASEMENT UNFINISHED 1SMAS MASONRY AT FN ATTIC-FINISHED
180 square feet
D
EFP ENCL FRAME PORCH
84 square feet
E
OMP OPEN MASONRY PORCH 1S FR ONE STORY FRAME
90 square feet