Address: 715 BROWN AVE   Parcel: 19060021020500

Parcel Sketches


Residential Card 1

Residential Card 1
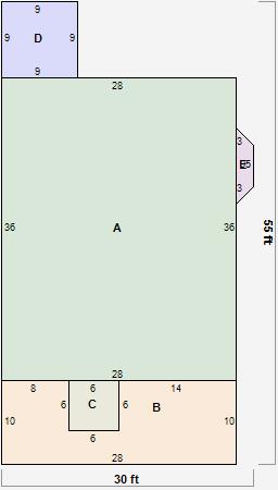
AMAIN1008 square feet
BUNFIN BSMT BASEMENT UNFINISHED OMP OPEN MASONRY PORCH 244 square feet
CUNFIN BSMT BASEMENT UNFINISHED EFP ENCL FRAME PORCH 36 square feet
D 1SMAS MASONRY EFP ENCL FRAME PORCH 81 square feet
EUNFIN BSMT BASEMENT UNFINISHED 1SMAS MASONRY 14 square feet