Elected Officials
Courts
Departments
Initiatives
Open Government
About
Login / Register
Home
/
Property & Tax Records
/
Property Records
/
Property & Tax Search
/
Parcel Profile
/
Sketches
Search for Another Parcel
Parcel Profile
Historical Card
Sketches
Photos
Tax Map
Taxes
Print View
Address: 2412 LIBERTY ST
Parcel: 19060024020400
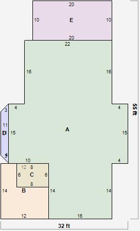
Parcel Sketches
Residential Card 1
A
MAIN
1026 square feet
B
OFP OPEN FRAME PORCH
168 square feet
C
1S FR ONE STORY FRAME 1S FR ONE STORY FRAME
48 square feet
D
UNFIN BSMT BASEMENT UNFINISHED FRBAY FRAME BAY
26 square feet
E
MA_PT CONC/MAS PATIO
200 square feet