Elected Officials
Courts
Departments
Initiatives
Open Government
About
Login / Register
Home
/
Property & Tax Records
/
Property Records
/
Property & Tax Search
/
Parcel Profile
/
Sketches
Search for Another Parcel
Parcel Profile
Historical Card
Sketches
Photos
Tax Map
Taxes
Print View
Address: 2401 PLUM ST
Parcel: 19060024021200
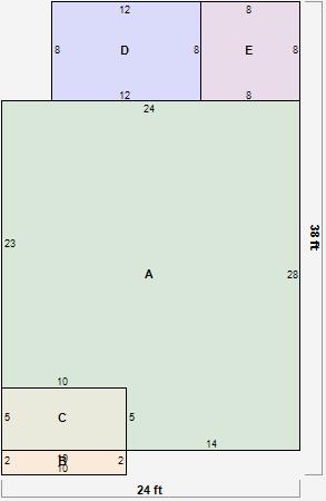
Parcel Sketches
Residential Card 1
A
MAIN
660 square feet
Residential Card 2
A
MAIN
622 square feet
B
EFP ENCL FRAME PORCH
20 square feet
C
EFP ENCL FRAME PORCH 1S FR ONE STORY FRAME
50 square feet
D
OFP OPEN FRAME PORCH
96 square feet
E
EFP ENCL FRAME PORCH
64 square feet