Elected Officials
Courts
Departments
Initiatives
Open Government
About
Login / Register
Home
/
Property & Tax Records
/
Property Records
/
Property & Tax Search
/
Parcel Profile
/
Sketches
Search for Another Parcel
Parcel Profile
Historical Card
Sketches
Photos
Tax Map
Taxes
Print View
Address: 2427 PLUM ST
Parcel: 19060024022000
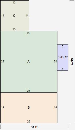
Parcel Sketches
Residential Card 1
A
MAIN
728 square feet
B
UNFIN BSMT BASEMENT UNFINISHED 1S FR ONE STORY FRAME
364 square feet
C
WDDCK WOOD DECKS
182 square feet
D
MA_PT CONC/MAS PATIO
60 square feet