Elected Officials
Courts
Departments
Initiatives
Open Government
About
Login / Register
Home
/
Property & Tax Records
/
Property Records
/
Property & Tax Search
/
Parcel Profile
/
Sketches
Search for Another Parcel
Parcel Profile
Historical Card
Sketches
Photos
Tax Map
Taxes
Print View
Address: 2408 CASCADE ST
Parcel: 19060032020200
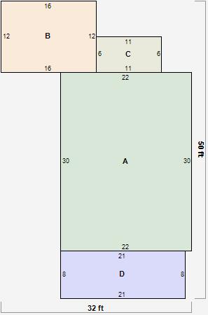
Parcel Sketches
Residential Card 1
A
MAIN
660 square feet
B
FR GR FRAME GARAGE
192 square feet
C
UNFIN BSMT BASEMENT UNFINISHED 1SMAS MASONRY
66 square feet
D
OFP OPEN FRAME PORCH
168 square feet