Elected Officials
Courts
Departments
Initiatives
Open Government
About
Login / Register
Home
/
Property & Tax Records
/
Property Records
/
Property & Tax Search
/
Parcel Profile
/
Sketches
Search for Another Parcel
Parcel Profile
Historical Card
Sketches
Photos
Tax Map
Taxes
Print View
Address: 1023 W 24 ST
Parcel: 19060032020900
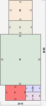
Parcel Sketches
Residential Card 1
A
MAIN
720 square feet
B
MA STOOP/TERR MAS STOOP
168 square feet
C
1SMAS MASONRY
112 square feet
D
1SMAS MASONRY
36 square feet
E
OFP OPEN FRAME PORCH
45 square feet
F
UNFIN BSMT BASEMENT UNFINISHED 1SMAS MASONRY
108 square feet