Elected Officials
Courts
Departments
Initiatives
Open Government
About
Login / Register
Home
/
Property & Tax Records
/
Property Records
/
Property & Tax Search
/
Parcel Profile
/
Sketches
Search for Another Parcel
Parcel Profile
Historical Card
Sketches
Photos
Tax Map
Taxes
Print View
Address: 1039 W 24 ST
Parcel: 19060032021500
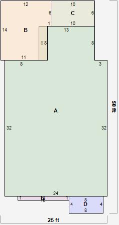
Parcel Sketches
Residential Card 1
A
MAIN
872 square feet
B
1SMAS MASONRY
160 square feet
C
MA STOOP/TERR MAS STOOP
60 square feet
D
1SMAS MASONRY
32 square feet
E
UNFIN BSMT BASEMENT UNFINISHED MABAY MASONRY BAY MABAY MASONRY BAY
12 square feet