Elected Officials
Courts
Departments
Initiatives
Open Government
About
Login / Register
Home
/
Property & Tax Records
/
Property Records
/
Property & Tax Search
/
Parcel Profile
/
Sketches
Search for Another Parcel
Parcel Profile
Historical Card
Sketches
Photos
Tax Map
Taxes
Print View
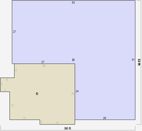
Address: 1003 W 26 ST
Parcel: 19060037030300
Parcel Sketches
Commercial Card 1
A
MAIN
714 square feet
B
MAIN
714 square feet
C
MAIN
357 square feet
D
MAIN
2055 square feet