Elected Officials
Courts
Departments
Initiatives
Open Government
About
Login / Register
Home
/
Property & Tax Records
/
Property Records
/
Property & Tax Search
/
Parcel Profile
/
Sketches
Search for Another Parcel
Parcel Profile
Historical Card
Sketches
Photos
Tax Map
Taxes
Print View
Address: 932 W 29 ST
Parcel: 19060039013000
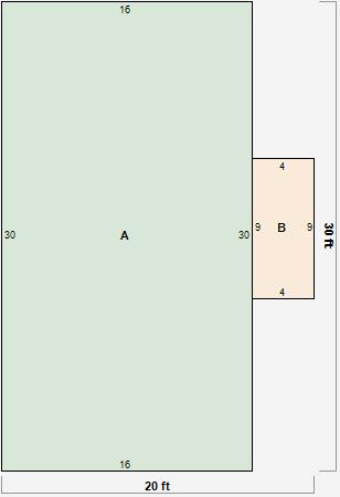
Parcel Sketches
Residential Card 1
A
MAIN
550 square feet
B
WDDCK WOOD DECKS
120 square feet
C
EFP ENCL FRAME PORCH
40 square feet
D
UNFIN BSMT BASEMENT UNFINISHED EFP ENCL FRAME PORCH
42 square feet
E
UNFIN BSMT BASEMENT UNFINISHED 1S FR ONE STORY FRAME
98 square feet
Residential Card 2
A
MAIN
480 square feet
B
EFP ENCL FRAME PORCH
36 square feet