Elected Officials
Courts
Departments
Initiatives
Open Government
About
Login / Register
Home
/
Property & Tax Records
/
Property Records
/
Property & Tax Search
/
Parcel Profile
/
Sketches
Search for Another Parcel
Parcel Profile
Historical Card
Sketches
Photos
Tax Map
Taxes
Print View
Address: 2644 HAZEL ST
Parcel: 19060043031100
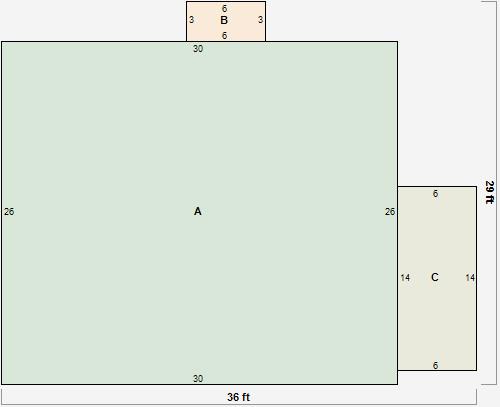
Parcel Sketches
Residential Card 1
A
MAIN
1120 square feet
B
MA STOOP/TERR MAS STOOP
48 square feet
C
OMP OPEN MASONRY PORCH OFP OPEN FRAME PORCH
154 square feet
Residential Card 2
A
MAIN
780 square feet
B
OFP OPEN FRAME PORCH
18 square feet
C
OFP OPEN FRAME PORCH
84 square feet