Elected Officials
Courts
Departments
Initiatives
Open Government
About
Login / Register
Home
/
Property & Tax Records
/
Property Records
/
Property & Tax Search
/
Parcel Profile
/
Sketches
Search for Another Parcel
Parcel Profile
Historical Card
Sketches
Photos
Tax Map
Taxes
Print View
Address: 555 W 31 ST
Parcel: 19060046011300
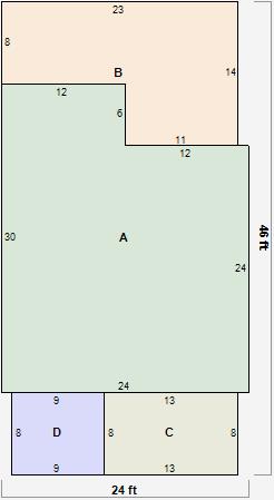
Parcel Sketches
Residential Card 1
A
MAIN
648 square feet
B
WDDCK WOOD DECKS
250 square feet
C
UNFIN BSMT BASEMENT UNFINISHED 1SMAS MASONRY
104 square feet
D
UNFIN BSMT BASEMENT UNFINISHED OMP OPEN MASONRY PORCH
72 square feet